シティハウス吉祥寺北町 12,000万
- 情報公開日:2026.04.11
- 次回更新予定日:2026.04.26
■JR中央線・総武線「三鷹」駅徒歩17分■JR中央線「吉祥寺」駅バス22分■総戸数106戸のビッグコミュニティ■Wオートロックシステム■6階建て5階部分、前面公園につき眺望良好■断熱性・省エネ性高い「Low-E」ガラス採用■二重床・二重天井採用~周辺環境~・ミニストップ武蔵野緑町店まで徒歩2分・サミットストア武蔵野緑町店まで徒歩5分・スギドラッグ武蔵野緑町まで徒歩5分・武蔵野市立大野田小学校まで徒歩3分・武蔵野市立第四中学校まで徒歩10分・大野田公園まで徒歩1分・武蔵野陽和会病院まで徒歩5分・武蔵野市役所まで徒歩7分・武蔵野市立中央図書館まで徒歩2分
詳細
- 物件番号
- c096602-1458
- 所在地
- 武蔵野市吉祥寺北町4丁目
- アクセス
-
JR中央本線 [三鷹駅] 徒歩17分
西武新宿・西武園線 [東伏見駅] 徒歩28分 - 価格
- 12,000 万円
- 管理費
- 18,045円/月
- 修繕積立
- 15,870円/月
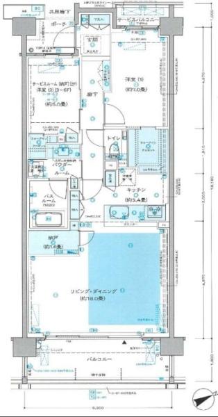
- 専有面積
- 80.09 m² バルコニー 11.16 m²
- 取引態様
- 媒介
- 間取り
- 2LDK
- 部屋向き
- 南
- 築年
- 2017年12月
- 建物構造
- 鉄筋コンクリート造
- 所在階
- 5/6
- 総戸数
- 106
- 土地権利
- 所有権
- 引渡時期
- 相談
- 管理形態
- 全部委託
- 建物現況
- 居住中
- 駐車場
- 空無
地図
Now Loading...
資料請求
電話でお問合せ
- 担当: 辻 暉斗
- 物件No: c096602-1458
LINEでお問合せ
お問い合わせ
ありがとうございます
担当者が確認次第、折り返しご連絡させていただきます。