中野区江原町1丁目 戸建 7,590万
- 情報公開日:2026.02.02
- 次回更新予定日:2026.02.17
■カースペース1台分有■前面道路は約6mあり、整備された道路です■2026年1月20日リフォーム完了予定~リフォーム内容~・キッチン(システムキッチン、浄水器、食洗機付)・浴室(ミラー、シャワーホース、ヘッド)・トイレ(温水洗浄便座一体型便器、1F・2F)・洗面(洗面台・洗濯用水栓)・その他(照明器具、スイッチコンセント、建具、給湯器)・床、壁、天井貼替・ハウスクリーニング等
詳細
- 物件番号
- c096602-1495
- 所在地
- 中野区江原町1丁目
- アクセス
-
都営大江戸線 [新江古田駅] 徒歩9分
西武池袋・豊島線 [東長崎駅] 徒歩13分 - 価格
- 7,590 万円
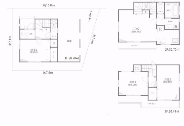
- 間取り
- 3LDK
- 駐車場
- 有
- 土地
- 66.67 m²
- 建物
- 79.89 m²
- 築年
- 2012年6月
- 接道状況
- 一方 (北 6m )
- 建物構造
- 木造
- 階数
- 3階建て
- 建物現況
- 空家
- 引渡時期
- 相談
- 都市計画
- 市街化区域
- 用途地域
- 第一種低層住居専用地域
- 建蔽率
- 60 %
- 容積率
- 150 %
- セットバック
- -
- 取引態様
- 媒介
- 土地権利
- 所有権
- 地代
- -
設備
- 閑静な住宅地
- 都市近郊
- 市街地が近い
- 前道6m以上
- 2沿線以上利用可
- 階建:3階建以上
- 日当り良好
- 通風良好
- 全居室フローリング
- シャンプードレッサー
- オートバス
- 浴室に窓
- 洗浄便座:温水洗浄便座
- バルコニー:バルコニー有
地図
Now Loading...
資料請求
電話でお問合せ
- 担当: 熊谷 脩輝
- 物件No: c096602-1495
LINEでお問合せ
お問い合わせ
ありがとうございます
担当者が確認次第、折り返しご連絡させていただきます。